HOME > 2014年売却済み案件
		
	売約済み案件一覧(過去事例)2014年
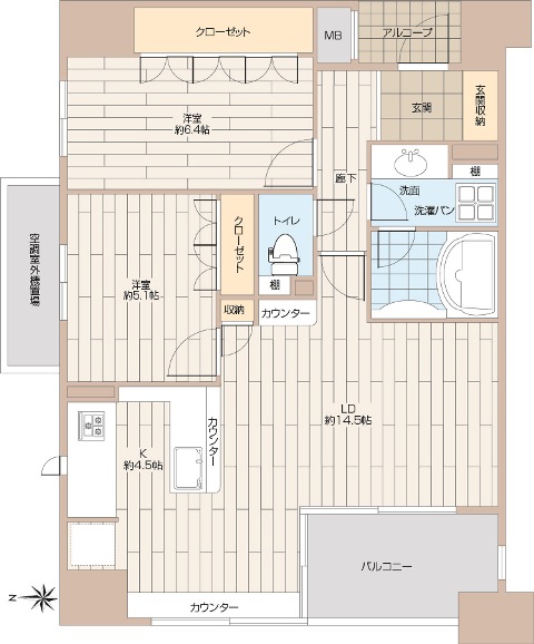
レクセルマンション上野入谷
| 所在地 | 台東区竜泉1-2-3 | 
|---|---|
| 交通 | 日比谷線『入谷』駅徒歩7分 | 
| 間取り | 2LDK | 
| 構造 | 鉄筋コンクリート造13階建9階部分 | 
| 専有面積 | 68.79㎡ | 
| バルコニー面積 | 6.27㎡ | 
| 築年月 | 平成18年8月築 | 
| 総戸数 | 48戸 | 
| 土地権利 | 所有権 | 
| 分譲会社 | 扶桑レクセル㈱ | 
| 施工会社 | ㈱土屋組 | 
| 管理会社 | ㈱大京アステージ | 
| 管理形態 | 全部委託 | 
| 管理方式 | 日勤 | 
| 管理費 | 月額/11,300円 | 
| 修繕積立金 | 月額/6,330円 | 
| 現状 | 空室 | 
| 引渡日 | 即可 | 
| 駐車場 | 空有(月額27,000円~30,000円) | 
| ペット | ペット飼育可 | 
| 備考 | 
 
		       
	 
		       
	 
		       
	 
		       
	










